Balcony Railings
Rotherham Council
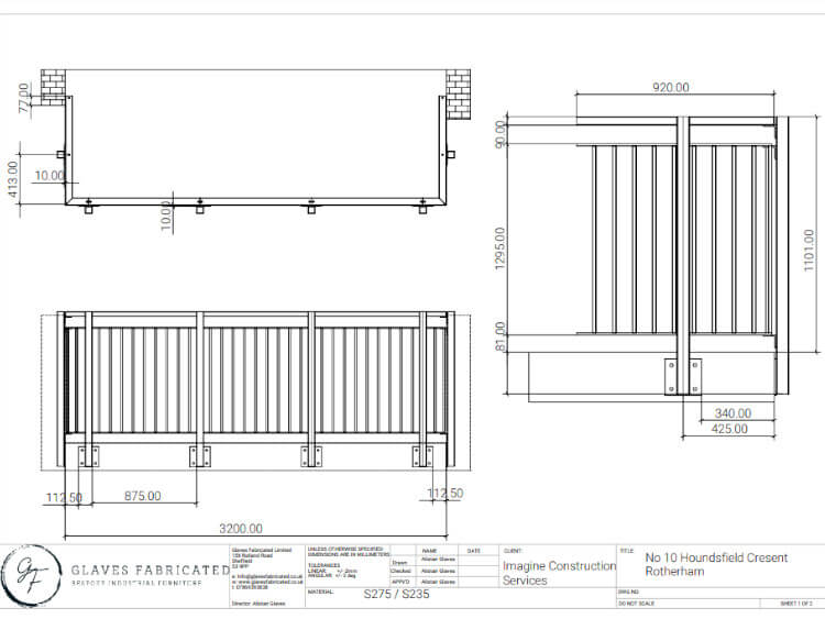
We worked with Rotherham Council to design and install 30 balcony railings on the Hounsfield Road development.
Our brief was to ensure the balcony railings met safety and building regulations whilst also being visually pleasing. This was a 12 week project from start to finish with balconies fitted to 3 storeys.
We worked alongside Imagine Construction, Mears Contracting and Tridant Scaffold to ensure this project was delivered to tight deadlines.
Balcony Railings
Our balcony railings are fabricated in-house to custom fit the requirements. Made from high quality galvanised steel they are available in a range of finishes and styles to suit your needs and compliment your property.
All our balcony railings use the highest quality fixings and fittings to ensure they remain strong for years.
If you would like to discuss our balcony railings, please get in touch with our friendly team today.
